Corner Lot planning hotel adjacent to Riverside HQ

Started by Zac T, July 17, 2025, 09:43:25 PM

Zac T



QuoteJacksonville-based Corner Lot wants to rezone property it owns around its Riverside building near Downtown to accommodate up to a 125-room hotel that CEO Andy Allen said July 16 would be flagged either a Marriott or Hilton.

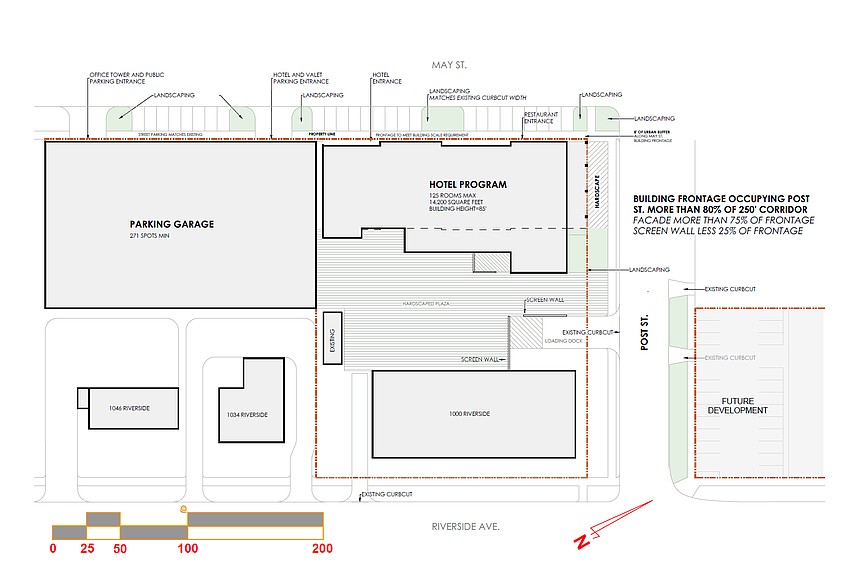
Through CCL Land I Downtown LLC, Corner Lot wants to rezone 1.9 acres at 1000 Riverside Ave. from Planned Unit Development to another PUD to permit a mixed-use retail and hotel building.

The project is described as west of the Riverside Avenue and Post Street intersection. The hotel is at Post and May streets.

...

Corner Lot wants to develop the "hotel program" behind its nine-story, 78,080-square-foot Corner Lot Tower, whose ground floor features the River & Post restaurant.

The hotel footprint is 14,200 square feet and the building height 85 feet.

...

The plan also indicates a parking garage of at least 271 spaces along May Street next to the hotel. It will have a loading dock.

The hotel and restaurant entrances may directly front May Street.

https://www.jaxdailyrecord.com/news/2025/jul/17/corner-lot-wants-to-rezone-riverside-headquarters-site-to-add-hotel/

thelakelander

On the surface, this sounds like a great use of that surface parking lot behind the tower. The Five Points area would really use a hotel. I'd be interested to see what Riverside residents think.
"A man who views the world the same at 50 as he did at 20 has wasted 30 years of his life." - Muhammad Ali

Zac T

Hopefully the aesthetics of the hotel will be nicer than the recent hotels in Brooklyn

jcjohnpaint

Love it. I wish they would do something better with the Presbyterian lot on Post, now that their new facility is done. Zac thanks for the image.

Jax_Developer

#4
Quote from: jcjohnpaint on July 18, 2025, 05:42:11 AM
Love it. I wish they would do something better with the Presbyterian lot on Post, now that their new facility is done. Zac thanks for the image.

I'm very interested to see what happens with that lot. Arguably one of the most prime retail lots in our urban area given the bar/nightlife possibilities & parking lots around. This will only further that.

fsu813

5 Points needs a parking garage to reach its full potential, and this seems like a good opportunity to add it.

acme54321

Quote from: jcjohnpaint on July 18, 2025, 05:42:11 AM
Love it. I wish they would do something better with the Presbyterian lot on Post, now that their new facility is done. Zac thanks for the image.

The church/school doesn't own that lot.  It's owned by Westminster Communities, who own retirement tower and that whole block plus the tower behind Wendys).  They're a 501(c)3 that spun out of the Presbyterian Church (Not RPC though).  Not sure what deal they have with the school to use that lot.

Honestly I'd like to see that whole block redeveloped.

jcjohnpaint

I have never seen anyone use that lot and I drive past it two times a day for the last ten years

Captain Zissou

Quote from: fsu813 on July 18, 2025, 11:31:02 AM
5 Points needs a parking garage to reach its full potential, and this seems like a good opportunity to add it.

There are several "town center" areas across Jacksonville; such as San Marco Square, 5 Points, The Shops of Avondale, The First Block, and increasingly, Main Street that experience significant traffic and parking overflow into surrounding residential neighborhoods. Cars block driveways, damage lawns, and create ongoing friction between visitors and residents.

Rather than solving this by building multiple new parking garages which are expensive ($30k+ per space) and consume valuable land, I wish we'd implement a modern version of the streetcar network that once connected these neighborhoods.

Jacksonville's mobility fee system was originally designed to support exactly this kind of thinking. The intent was to shift transportation infrastructure funding away from car-centric development (like roads and parking) in favor of multimodal solutions like transit, bike/pedestrian infrastructure, and reduced car dependency.

In the urban core developers could opt out of structured parking requirements by paying into a traffic mitigation fund similar to how the City handles tree or stormwater mitigation. Instead of spending $30,000 per parking space, developers could contribute a reduced fee say $15,000 per unit to a fund explicitly earmarked for high-capacity, high-frequency transit in core neighborhoods.

The city would need to take the lead to develop the initial framework. Obviously no developer wants to be the first to invest without a system in place, but once a few urban neighborhoods are linked by reliable transit, we could finally reduce car dependency in a meaningful way.

thelakelander

Would have been great before JTA got caught up in the U2C nonsense. This streetcar network that was mentioned back in the 2010 Mobility Plan would have cost less to launch than what the U2C will cost taxpayers.
"A man who views the world the same at 50 as he did at 20 has wasted 30 years of his life." - Muhammad Ali

jaxlongtimer

Quote from: Captain Zissou on July 18, 2025, 03:33:03 PM
Quote from: fsu813 on July 18, 2025, 11:31:02 AM
5 Points needs a parking garage to reach its full potential, and this seems like a good opportunity to add it.

There are several "town center" areas across Jacksonville; such as San Marco Square, 5 Points, The Shops of Avondale, The First Block, and increasingly, Main Street that experience significant traffic and parking overflow into surrounding residential neighborhoods. Cars block driveways, damage lawns, and create ongoing friction between visitors and residents.

Rather than solving this by building multiple new parking garages which are expensive ($30k+ per space) and consume valuable land, I wish we'd implement a modern version of the streetcar network that once connected these neighborhoods.

Jacksonville's mobility fee system was originally designed to support exactly this kind of thinking. The intent was to shift transportation infrastructure funding away from car-centric development (like roads and parking) in favor of multimodal solutions like transit, bike/pedestrian infrastructure, and reduced car dependency.

In the urban core developers could opt out of structured parking requirements by paying into a traffic mitigation fund similar to how the City handles tree or stormwater mitigation. Instead of spending $30,000 per parking space, developers could contribute a reduced fee say $15,000 per unit to a fund explicitly earmarked for high-capacity, high-frequency transit in core neighborhoods.

The city would need to take the lead to develop the initial framework. Obviously no developer wants to be the first to invest without a system in place, but once a few urban neighborhoods are linked by reliable transit, we could finally reduce car dependency in a meaningful way. 

In the short run, and it would be quick, easy and cheap, they could run buses over a proposed streetcar path and build the streetcar once the traffic is proven out and more time and money could be found.  I think we way underestimate the value of buses in this City to quickly expand and improve mass transit vs. likely 10 years or more for streetcars, the joke U2C/Skyway expansion, etc. plus the hundreds of millions of dollars that would need to be found (Trump just cancelled California's $4 billion high speed rail so you know we are at least 3+ years out from a mass transit friendly president... maybe.)

thelakelander

QuoteIn the short run, and it would be quick, easy and cheap, they could run buses over a proposed streetcar path and build the streetcar once the traffic is proven out and more time and money could be found.

This isn't how these systems work. Bus lines rarely....if ever.....grow into any form of rail. They play different roles and serve different ridership segments of mass transit. Land use is also a major factor. With that said, I don't see any form of rail, outside of intercity (which is already here), working or being improved anytime soon. Unfortunately, with JTA at the helm, we don't have the local capacity. Unfortunate, because the cost is not the obstacle locally. Foresight, vision and political will is. In the meantime, we'll continue running the bus and Skyway systems into the ground, while flusing millions in tax dollars down the toilet on the U2C.
"A man who views the world the same at 50 as he did at 20 has wasted 30 years of his life." - Muhammad Ali

jaxlongtimer

Quote from: thelakelander on July 19, 2025, 04:34:57 PM
QuoteIn the short run, and it would be quick, easy and cheap, they could run buses over a proposed streetcar path and build the streetcar once the traffic is proven out and more time and money could be found.

This isn't how these systems work. Bus lines rarely....if ever.....grow into any form of rail. They play different roles and serve different ridership segments of mass transit. Land use is also a major factor. With that said, I don't see any form of rail, outside of intercity (which is already here), working or being improved anytime soon. Unfortunately, with JTA at the helm, we don't have the local capacity. Unfortunate, because the cost is not the obstacle locally. Foresight, vision and political will is. In the meantime, we'll continue running the bus and Skyway systems into the ground, while flusing millions in tax dollars down the toilet on the U2C.

I was just trying to get some robust mass transit today, not wait 10 or more years for it.  Something is better than nothing.  Not expecting streetcars to follow buses but getting urban core mass transit jumpstarted can't hurt for building the case and public pressure for more robust streetcars.  Right now, most Jax citizens have no idea what we are missing out on or not culturally acclimated to using mass transit.  Buses would be a good, quick, easy, cheap jump start... that's all.

thelakelander

#13
^Streetcars aside, who's going to give Jax some robust mass transit today? Are you really confident that JTA can do that without a massive overhaul? Even with buses? We could have done some really cool things with the bus system for what we we just spend to run empty camper vans up and down Bay Street.
"A man who views the world the same at 50 as he did at 20 has wasted 30 years of his life." - Muhammad Ali

Florida Power And Light

#14
Quote from: thelakelander on July 17, 2025, 10:13:10 PM
On the surface, this sounds like a great use of that surface parking lot behind the tower. The Five Points area would really use a hotel. I'd be interested to see what Riverside residents think.

Five Points gonna be a Major Attraction. Yippee!!! Never ever imagined Need Use A Hotel, but no doubt, let's do it!
The area " Bed & Breakfast" way behind in supply........ Shucks...we need Scale! Density!!
Who cares what the Residents "Think". (What they might do...awww,skip that ....)
Possibly more 'valuable' for ...........Parking.
By the way,who in fact Owns This Property? ( or did own...run Title Search...)
Then What....?