JEA Selects Downtown For New Corporate Headquarters

Started by thelakelander, April 02, 2019, 10:09:07 PM

thelakelander

Would a customer service center be considered retail?
"A man who views the world the same at 50 as he did at 20 has wasted 30 years of his life." - Muhammad Ali

Tacachale

Quote from: thelakelander on August 18, 2019, 08:08:09 PM
Would a customer service center be considered retail?

Good question. It's a similar effect, a space that draws people in and out all day. Depending on how it's set up it could be quite like retail.
Do you believe that when the blue jay or another bird sings and the body is trembling, that is a signal that people are coming or something important is about to happen?

Ken_FSU

Quote from: Tacachale on August 18, 2019, 10:32:31 PM
Quote from: thelakelander on August 18, 2019, 08:08:09 PM
Would a customer service center be considered retail?

Good question. It's a similar effect, a space that draws people in and out all day. Depending on how it's set up it could be quite like retail.

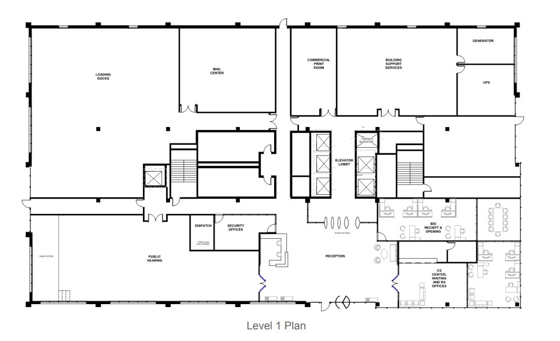
Here's what the setup is currently envisioned to look like, with the customer service center, waiting area, and public hearing space fronting North Pearl. I'd be surprised if there's any additional retail in the headquarters building, just because building security was such a concern for JEA during the bid process.



Here's the garage though, which - for now - is planned with 11,000 square feet of ground-floor retail:


Steve

So, a few things

- The rendering and first floor plan don't exactly match, but I get the idea (it looks like the greenspace entrance corridor and the mail center was swapped; seems like the actual floor plan makes more sense in that regard).
- Employees enter either through the greenspace between the garage and the building, or from Adams Street. The general public enters off of Pearl or in that same greenspace.
- The Garage is interesting. I'm assuming the Monroe Street Entrance is perhaps public parking (a royal PITA to get to with the One way situations of Pearl and Julia - they really need to at least make most of the N-S streets 2 way but that's another issue), and the Julia Street Entrance is for employees, but I can't figure out the extra parking on the ground at the corner of Julia and Adams (in the scheme of things it isn't that many spaces). Perhaps that's space that could be retail later? It makes the corner of Julia and Adams is underwhelming. It would almost be better if the retail and parking were flipped. There also doesn't seem to be logical pedestrian connections out of that parking area.

thelakelander

^Without more information, it would appear the ground parking could be limited off-street parking for the retail spaces. However, if that entire section of the garage was for public parking, retail spaces could be integrated with the rest of the public parking.
"A man who views the world the same at 50 as he did at 20 has wasted 30 years of his life." - Muhammad Ali

FlaBoy

Adams and the corner of Julia need to be the focus of retail.


vicupstate

"The problem with quotes on the internet is you can never be certain they're authentic." - Abraham Lincoln

thelakelander

It looks better than the previous rendering. It's a style of architecture that DT Jax doesn't have much of. However, I'll be interested to see how the corner of Adams and Julia is addressed at ground level.


Before:



After:
"A man who views the world the same at 50 as he did at 20 has wasted 30 years of his life." - Muhammad Ali

Steve

Quote from: vicupstate on August 20, 2019, 10:18:59 PM
A big step down, IMO.

Aesthetics wise, I disagree. I thought the first one was basic and bland. At least this gives something different.

marcuscnelson

It took me a little time, but I'm starting to really like it. It's definitely a little more distinctive, although somehow the garage seems to have less detail than in the original. The other thing of note is that the structure still appears to be fundamentally the same, just with a new exterior.
So, to the young people fighting in this movement for change, here is my charge: march in the streets, protest, run for school committee or city council or the state legislature. And win. - Ed Markey

acme54321

I think it looks pretty good.  I like how it seems to front the courthouse lawn a little better.  hard to tell what's going on the the garage without a rendinering from the back side.  It does look a little more bland, especially compared to the building.

Steve

It's hard to tell the ground floor detail of the new rendering. The old one aside from paint color doesn't look like anything to write home about.

To me the garage "bar" is set by the BofA tower garage. It doesn't even look like a garage.

Captain Zissou


Papa33

Ha ha.  I see a BMW and what appears to be a Tesla as well.